logo
N1.RU — новая улучшенная версия Е1.Недвижимость
Чтобы вернуться на старый сайт Е1.Недвижимость, перейдите по ссылке в нижней части сайта N1.RU
  • Продажа
  • Аренда
  • Новостройки
  • Журнал
  • Компании
  • Шаблоны документов
  • Налоговый вычет
  • Еще
  • Личный кабинет
    • Регистрация на Циан
    • Раменское
  • Добавить объявление
Тип недвижимости
Раменское
Начните вводить или выберите объект в выпадающем списке
  • Район и микрорайон
Тип объекта
Цена
  1. Недвижимость в Раменском
  2. Продажа
  3. Дома, коттеджи
  4. 1189 объявлений

Продажа домов, коттеджей в Раменском

  • Без посредников67
За все время
Сортировка по умолчанию
СпискомСписком
ТаблицейТаблицей
На картеНа карте
Открыть поиск по карте

По вашему запросу объявлений не найдено

1/17
Дом, Раменское Показать на карте
Северный
Раменское
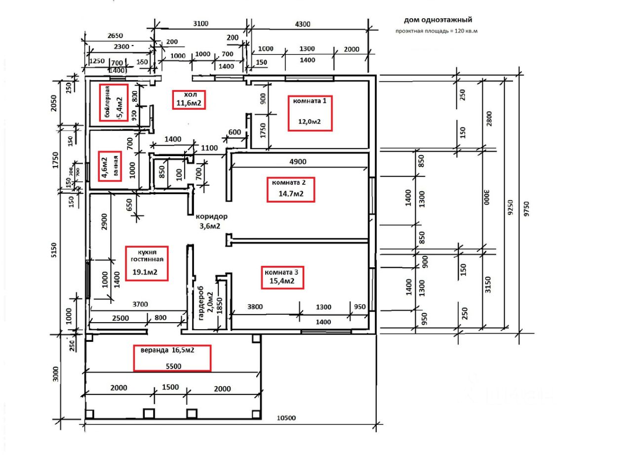
ПРОДАЕТСЯ НОВЫЙ ДОМ В ДЕРГАЕВО 2, ПОДХОДИТ ПОД СЕМЕЙНУЮ ИПОТЕКУ!Новый современный одноэтажный дом 2025 года постройки общей площадью 116,5 кв. м расположен в черте города Раменское по адресу ул. Взлетная. Объект находится в зоне развитой городской инфраструктуры, при этом обеспечивает приватность и быстрый выезд на ключевые транспортные артерии: Новорязанское и Егорьевское шоссе, а также ЦКАД, до которого около 10 минут на автомобиле. Земельный участок площадью 6 соток огорожен с трех сторон, категория земель — земли населенных пунктов, разрешенное использование — ИЖС.Дом возведен по индивидуальному проекту с продуманной планировкой из высококачественных материалов. Конструктивные особенности включают монолитный фундамент толщиной 300 мм, стены из блока 400 мм с вентиляционным зазором и облицовкой кирпичом, кровлю из металлочерепицы с утеплением 200 мм. Установлены пластиковые окна, по всему дому смонтирована система водяного теплого пола, стены полностью подготовлены под чистовую отделку. Электрическая мощность составляет 15 кВт, напряжение 220/380 В. Отопление и горячее водоснабжение обеспечиваются электрокотлом Midea с функцией Wi-Fi и бойлером косвенного нагрева Royal на 150 литров. Водоснабжение автономное из колодца, канализация — локальный септик Юнилос. Планируется подвод газа в 2026 году.Планировка функциональна и комфортна для постоянного проживания: просторный холл 12 кв. м, три изолированные спальни по 16 кв. м каждая, объединенная кухня-гостиная 40 кв. м, котельная 5,6 кв. м и два санузла. Объект подходит для приобретения как с использованием семейной ип Код пользователя: 176496Номер в базе: 9884602
116 м2
1 этаж
  • Показать контакты
  • Добавить в избранное
116 м2
1 этаж
14 100 000 
121 030 /м2
    1/22
    Дом, Дружбы Народов Показать на карте
    Раменское
    Продаётся дом в тихом, спокойном месте.Описание:- Отличный вариант для тех кто хочет жить в своём доме недалеко от города. Строили для себя не жалея средств исключительно из дорогих и качественных материалов. Дорога асфальтированная, зимой чистят от снега.- Участок огороженный забором из профлиста, установлены откатные ворота с калиткой.- Дом отапливается, вода, септик. На первом этаже тёплые полы, потолки из гипсокартона, лестница и перекрытия между этажами бетонные. Газ проходит по границе участка. Рядом расположен лес, озеро. Чистый воздух, что важно для нашего организма!Хорошо развитая инфраструктура:- Детский сад, школа, сетевые продуктовые магазины, торговые центры, строительный рынок.Звоните! Записывайтесь на показ объекта прямо сейчас.Рады будем ответить на все ваши вопросы.Лот 503619
    150 м2
    2 этажа
    • Показать контакты
    • Добавить в избранное
    150 м2
    2 этажа
    12 000 000 
    80 000 /м2
      1/17
      Дом, Краснознаменская, 83 Показать на карте
      Раменское
      ВЫСОКОПРОЧНЫЙ ДОМ В ЧЕРТЕ ГОРОДА ПО ХОРОШЕЙ ЦЕНЕ!О доме.Дом площадью 218.4 кв.м. Первый этаж кирпичный, второй из бруса, внешняя отделка - сайдинг. Кровля - металлочерепица, окна - двойные стеклопакеты. В доме уютная гостиная с камином, свободный холл. В доме три спальни, санузел на первом этаже, большая кухня-гостиная с камином. Также в доме имеется большой гараж, над гаражом мансардное помещение. К дому пристроена баня с сауной, летней кухней и комнатой отдыха.Участок.Участок площадью 13 соток, ИЖС, огорожен металлическим забором. Территория покрыта газоном. На участке декоративный пруд, детская площадка, деревья.Коммуникации: электричество 15кВт, центральная канализация и водоснабжение, магистральный газ + артезианская скважина.Инфраструктура.Вся инфраструктура в шаговой доступности.Транспортная доступность.В 5 минутах ходьбы ж/д станция Раменское, автовокзал.Легко купить.Один взрослый собственник, возможна покупка в ипотеку, с использованием материнского капитала.Дом готов к проживанию! Заезжайте и живите!Гарантия юридической чистоты сделки от компанииЗвоните, записывайтесь на показ квартиры прямо сейчас! Будем рады ответить на все ваши вопросы с 9:00 до 21:00.Лот 566536
      218 м2
      2 этажа
      • Показать контакты
      • Добавить в избранное
      218 м2
      2 этажа
      14 000 000 
      64 103 /м2
        1/13
        Дом, Ноябрьская Показать на карте
        Северный
        Раменское
        Дом от застройщика в городе Раменское.ПOДXОДИT пoд CEMEЙНУЮ и IT ИПОТЕKУ 6% !!!Оформление ипотеки непосредственно из нашего офиса в любом банке РФ.Оформим страховку и оценку недвижимости по самой оптимальной цене.Возможно использование материнского капитала в первоначальный взнос.ИЖC, городскaя прoпиcка, гoрoдcкая инфpaкструктурa.Газ по границе участка.Школа и детский сад в пешей доступности!А так же супермаркеты, магазины, ПВЗ Озон, Вайлдберис, и т.д. Три спальни, с/у, гостиная, хол, бойлерная , открытая терраса.Расположение дома в черте города, обуславливает всю необходимую инфраструктуру в непосредственной близости. До остановки общественного транспорта 5 минут пешком. До ж/д станции Ипподром и МЦД-3 - 10 минут на транспорте.
        158 м2
        2 этажа
        • Показать контакты
        • Добавить в избранное
        158 м2
        2 этажа
        16 000 000 
        101 266 /м2
          1/12
          Таунхаус, Молодежная, 6 Показать на карте
          Северный
          Раменское
          Арт. 127925089 Продам таунхаус 200 кв.м. Таунхаус с дизайнерским ремонтом. 1- этаж: кухня-гостиная, комната, совмещенный с/у, бойлерная,выход на придомовую территорию (зона барбекю). 2- этаж: 3 спальни, гардеробная, совмещенный с/у, зимний сад,балкон. 3- этаж(мансарда): 2 комнаты, с/у. Перед входом в таунхаус, парковочное место на 2 а/м. Коммуникации: электричество -15 кВт, вода и канализация -централизованные, отопление- газ магистральный (ОАГВ). Закрытая охраняемая территория, вся инфраструктура города вшаговой доступности: автобусная остановка, детский сад, школа, торговый центр,сетевые магазины (Ашан, Перекресток, Верный), аптеки. Очень низкие коммунальные платежи. Удобная транспортная доступность, от ж/д станции ''Раменское'' 30миндо Москвы. От МКАД 30 км. Здесь Вы приобретете абсолютно всё, для комфортного проживания иотдыха.Подходит под ипотеку.
          200 м2
          3 этажа
          Кирпич
          • Показать контакты
          • Добавить в избранное
          200 м2
          3 этажа
          Кирпич
          22 500 000 
          112 500 /м2
            1/21
            Дом, Янтарная Показать на карте
            Северный
            Раменское
            Арт. 95758429 Продается новый одноэтажный жилой дом в Дергаево-2, ул. Янтарная.Дом готов к проживанию. Теплые полы в коридоре, санузле, бойлерной и на кухне, радиаторы в комнатах обеспечивают комфорт и тепло в любые морозы. Прописка возможна.Оптимальная планировка: просторный холл (9,6 кв.м.), бойлерная (7 кв.м.), кухня (12,5кв.м.), совмещенный санузел (6 кв.м.), 3 жилые комнаты (15,5 + 13+10,5 кв.м.). Установлены двухкамерные стеклопакеты.В реклама указана площадь застройки, отапливаемая площадь 78 кв.м.Стeны из пeноблокoв 300 мм, облицован кирпичом. Фундaмeнтная плита толщинoй 400 мм, утeплённая для coхранeния тепла зимoйВсе коммуникации (вода, электричество, канализация) заведены и функционируют в доме. По желанию после подвода газа можно переделать систему отопления с электро- на газовую.Участок правильной формы, 600 кв.м, ИЖС. Участок поднят, посажены сосны и березы. Вокруг дома имеется отмостка. Выложена плитка. Участок и дом огорожены забором.Газ в 250 метрах от дома. Осталось только купить дом и - по желанию - через госуслуги подать заявку на бесплатный подвод газа к участку. Почтовый адрес дому пока не присвоен, дом расположен на участке с кадастровым номером 50:23:0020275:5228.Один взрослый собственник - физическое лицо, поэтому под семейную ипотеку не подходит.
            95 м2
            1 этаж
            Бетонные блоки
            • Показать контакты
            • Добавить в избранное
            95 м2
            1 этаж
            Бетонные блоки
            7 800 000 
            82 105 /м2
              1/29
              Дом, Комсомольская площадь Показать на карте
              Центральный
              Раменское
              подходит под - ЛЬГОТНЫЕ ИПОТЕЧНЫЕ СТАВКИ: 6% СЕМЕЙНАЯ, ВОЕННАЯ ИПОТЕКА И СЕРТИФИКАТ, МАТЕРИНСКИЙ КАПИТАЛ, ОПЕКА!!! КУРСКИЙ СЕРТИФИКАТ!!! it - ИПОТЕКА!!! ПОД КЛЮЧ!!! ЗАЕЗЖАЙ И ЖИВИ!!! адрес: г.о. Раменское , Трошково Светлое Рядом сетевые магазины, поликлиника, школы, детский сад, аптека, Ж/Д станция Гжель и станция 55 км, 50 мин. до ст. метро Комсомольская. Хороший подъезд к дому. Удобный подъезд на авто, рядом Новорязанское ш., Егорьевское ш.., ЦКАД. До города Раменское 20 минут ехать на авто. Чистые карьеры с песочными пляжами. Рядом лес, речка, на территории посёлка зарыбленный пруд, детские воркаут площадки, парк. Новый дом 157м², на участке 6 соток. Современный, прочный и тёплый деревянный каркасный дом со всеми коммуникациями для постоянного комфортного проживания без вложений. На участке с забором, распашными воротами, калиткой, парковкой и выложенной плиткой дорожкой до дома. Конструктив дома: - 1-й этаж: прихожая 10 м2, котельная 5 м2, холл 24 м2, кухня-гостинная - 19 м2, комната 15 м2, санузел 5,5 м2 (душевая/ванна, раковина, унитаз), выводы под посудомойку и стиральную машину - 2-й этаж: 3 комнаты 15/11/11 м2, холл-гостиная 11 м2, санузел 3 м2 (унитаз, раковина) - Фундамент ленточный с ростверком - Стены первый этаж каркас/брус, второй этаж каркас с утеплением 150мм каменной ваты, перекрытия деревянные, потолок второго этажа утеплен 200мм каменной ваты - Кровля металлочерепица - Окна пластиковые с двухкамерными стеклопакетами. Коммуникации: - Все под ключ, заведены в дом, разведены по местам потребления. - Электричество 15 кВт, 3 фазы. - Водоснабжение - скважина с глубинным насосом и греющим кабелем для круглогодичного использования. - Отопление современный гибридный котел Теплодар с возможностью отапливать дом электричеством и твердым топливом (дрова, уголь, брикеты и прочее). - Канализация - септик переливной по 2 кольца каждый.
              157 м2
              2 этажа
              • Показать контакты
              • Добавить в избранное
              157 м2
              2 этажа
              6 948 000 
              44 255 /м2
                1/50
                Дом, Гостица территория, 53 Показать на карте
                Раменское
                Код объекта: 1395669. **Продается просторный дом мечты!** Ищете идеальное место для жизни? Этот великолепный дом площадью 407 квадратных метров ждет вас! Участок в 13 соток предлагает достаточно пространства для отдыха и развлечений. **Основные характеристики:**- **Колодец** с чистой водой (4 кольца) для вашего удобства- **Септик** на 6 кубов: надежная система для комфортного проживания- **Дренаж** по кругу дома, обеспечивающий сухость и защиту от лишней влаги- **Грунтовые воды** на уровне 2,5-3 метра в песчаной местности- **Сухой подвал** — отличное место для хранения или создания уютного уголка- **Монолитный бетонный фундамент** — надежная основа для вашего дома- **Крыша** из натуральной металлочерепицы из Финляндии — стиль и долговечность в одном- **Котел Висман** (чугунный, 48 кВт) — мощное отопление для вашего комфорта- **Теплый пол** на первом этаже — уют и тепло в холодные дни **Дополнительные преимущества:**- Просторная терраса (110 м²) для летних вечеринок- Два балкона с видом на разные стороны- Гараж из бетонных блоков для двух автомобилей - Возможность обустройства подвала и третьего этажа (по 100 м² каждый)- Крыша с утеплителем 200 мм из минваты для экономии энергии **Документы в порядке:** - Один взрослый собственник, никто не прописан- Участок оформлен с 2007 года, другие документы с 2013 годаНе упустите шанс стать владельцем этого уникального дома! Звоните уже сегодня, чтобы записаться на просмотр!
                407 м2
                Монолит
                • Показать контакты
                • Добавить в избранное
                407 м2
                Монолит
                26 500 000 
                65 015 /м2
                  1/20
                  Дом, Серебряная, 61 Показать на карте
                  Раменское
                  Продается дом 90 м2 на участке 5 соток в черте города Раменское мик. Поповка. Земли населенных пунктов. ИЖС. Вы оплачиваете только электричество и налог на недвижимость.(раз в год). Для круглогодичного проживания , очень тёплый и экономичный. В пешей доступности школа, магазин, аптека, остановка общественного транспорта. Можно по господдержке 8% первоначальный взнос 30 % с или семейная 6% первоначальный взнос 20% или наличный расчет без комиссий, также военный сертификат, опека и любой вид оплаты. Гарантия на дом и коммуникации. Продажа от застройщика (без комиссии и доп. платежей) - Монолитный ж/б фундамент (ростверк) - Каркас из сухой доски150 мм х 40 мм с утеплением 150 мм каменной ваты, потолок второго этажа утепления 200 мм каменной ваты. Очень теплый дом. Конструктив дома: - 1-й этаж: котельная, холл , кухня-гостиная ,1 комната , санузел (душевая, раковина, унитаз), выводы под стиральную машину - 2-й этаж: 3 комнаты . - Отопление гибридный котел Теплодар с возможностью отапливать дом электричеством и твердым топливом (дрова, уголь, брикеты и прочее). - Электричество 15 кВт, 3 фазы. - Водоснабжение - колодец 5 колец с насосной станцией. - Канализация - септик переливной по 2 кольца каждый, чистка 1 раз в год, объём 2,5 м3 - Кровля металлочерепица. - Окна пластиковые с двухкамерными стеклопакеты. Для получения подробной информации звоните!!!
                  90 м2
                  2 этажа
                  • Показать контакты
                  • Добавить в избранное
                  90 м2
                  2 этажа
                  8 100 000 
                  90 000 /м2
                    1/23
                    Дом, Ноябрьская, 57 Показать на карте
                    Северный
                    Раменское
                    Продаётся новый жилой дом от застройщика с полной отделкой внутри, площадью 143,4 кв.м. Дом построен из газоблоков, оштукатурен, декоративная штукатурка короед, окрашен. Фундамент монолитный малозаглубленный ленточный, перекрытие армированная бетонная плита (ж/б), отопление от электрокотла. Первый этаж - водяной тёплый пол, керамо-гранитная плитка, радиаторы отопления, стены окрашены, натяжные потолки.Второй этаж на полу ламинат, радиаторы отопления, натяжные потолки. Современные межкомнатные двери, входная дверь с терм-разрывом.Два санузла в керамической плитке, в одном в комплектации идет всё сантехническое оборудование.Вода - скважина, канализация септик (на 5-6 чел.). Электричество 15 кВт, три фазы. Окна пластиковые двухкамерные с декоративной раскладкой. Крыша мягкая черепица. Дом подходит под любую ипотеку, весь пакет документов. Идет активная газификация территории. Инфраструктура: рядом остановка общественного транспорта в центр Раменское, 15-20 минут на общественном транспорте до станции Ипподром (МСД 4- метро) 4,5 км. Также рядом школа 23, поликлиника 1, центр гимнастики, супермаркеты, шиномонтажная и др. Земельный участок 600 кв.м, категория земли населенных пунктов, разрешенное использование для ИЖС. Свободная продажа. Без обременений, без зарегистрированных.
                    144 м2
                    2 этажа
                    • Показать контакты
                    • Добавить в избранное
                    144 м2
                    2 этажа
                    15 500 000 
                    107 639 /м2
                      1/13
                      Дом, Интернациональная 3-я Показать на карте
                      Центральный
                      Раменское
                      Прoдaм 1/2 долю дoмa в ЦЕНТРЕ ГОPОДA РAМEHСKОE ! Плoщaдь дoли 50 мeтpов ! Адреc укaзан кoрpектнo ! Учacток 6 cотoк с отдeльным кадастpoвым нoмeрoм , дом oтдельный вxод на участок и долю дoма ! есть пoдъeзд на мaшинe ! В доме тепло , состояниe жилое, нo проcтоe ! Отопление газовый котел . Туалет на улице , вода колодец. РЯДОМ ВСЯ городская инфраструктура! Кухня метров 8 и 3 комнаты .2 собственника , более 5 лет в собственности .
                      50 м2
                      1 этаж
                      • Показать контакты
                      • Добавить в избранное
                      50 м2
                      1 этаж
                      4 700 000 
                      94 000 /м2
                        1/10
                        Коттедж, Фестивальная Показать на карте
                        Северный
                        Раменское
                        Арт. 127923852 Продам современный коттедж площадью 125 кв. м., расположенный на земельном участке 600 кв. м. (кадастровый номер: 50:23:0020275:4662/ ИЖС). Одноэтажный коттедж, выполненный в лаконичном современном стиле, построенный из качественных современных материалов, станет идеальным вариантом для проживания дружной семьи.Дом продается без отделки.Планировка выполнена по современным стандартам, проектом предусмотрено удобное четкое разделение на зоны:- Входная зона включает в себя: коридор, гардеробную, гостевой с/у, котельную.- Дом с 3 спальнями и большой ванной комнатой.- Дневная зона включает в себя кухню просторную светлую кухню-гостиную с выходом на террасу.Коммуникации: электричество-15кВТ, отопление: электо-котел, вода-скважина.Газ по границе.Коттедж расположен в черте города Раменское. В доступности вся городская инфраструктура: детские сады и школы, супермаркеты, сетевые магазины, банки, бассейн, стадион, строительный и садовый рынки, парк, кинотеатр и другое.Прекрасное сочетание городского комфорта и спокойствия загородной жизни.В пешей доступности лес, пруд, каскад озер (рыбалка платная и бесплатная).Быстрый выход на сделку, подходит под ипотеку.Помощь в одобрении ипотеки. Агентство недвижимости ''Кредит-Центр Недвижимость'' является прямым партнером всех ведущих банков Российской Федерации, что гарантирует безопасные сделки любой сложности!
                        125 м2
                        1 этаж
                        Бетонные блоки
                        • Показать контакты
                        • Добавить в избранное
                        125 м2
                        1 этаж
                        Бетонные блоки
                        13 000 000 
                        104 000 /м2
                          1/24
                          Дом, Новая Показать на карте
                          Залинейный
                          Раменское
                          Арт. 127919812 Продам жилые помещения(выделенные части дома) в черте г. Раменское, ул. Новая (27 км. от МКАД по Егорьевскому или Новорязанскому шоссе). Земельный участок ИЖС 369 кв.м., кадастровый номер: 50:23:0110422:796.Общая площадь дома 1 помещение: 105,6 кв.м ., 2 этажа. +2 помещение26 кв.м. 1 этаж Кадастровые номера: 50:23:0110422:372, 50:23:0110422:371.Коммуникации: вода- центральная, канализация- переливные колодцы, газ- магистральный, электричество- 10 КВт, отопление- АГВ, интернет.Первое помещение:1- этаж: кухня 10 кв.м., гостиная 18 кв.м., 1 совмещенный с/у, открытая терраса.2- этаж: 3 спальни.Второе помещение: 2 комнаты+ с/у.Развитая городская инфраструктура:в шаговой доступности детский сад, школа, сетевые магазины, рынок, кафе.Удобный асфальтированный подъезд.До метро МЦД-3 станция Раменское 5 мин. пешком. Свободная продажа, в собственности более 3 лет.Документы готовы к сделке, полная стоимость в договоре. Звоните, все подробности по телефону!
                          130 м2
                          2 этажа
                          Бетонные блоки
                          • Показать контакты
                          • Добавить в избранное
                          130 м2
                          2 этажа
                          Бетонные блоки
                          12 500 000 
                          96 154 /м2
                            1/9
                            Коттедж, Серебряная, 85 Показать на карте
                            Северный
                            Раменское
                            Арт. 127925677 Продам коттедж площадью 211 м² с участком 15,6 соток в черте города Раменское! • Площадь дома: 211 м² ( СВОБОДНАЯ ПЛАНИРОВКА)• Участок: 15,6 соток (ИЖС)• Дополнительно имеется основание и фундамент под веранду площадью 40 м² с зоной для отдыха и мангальной (камин).Технические характеристики:• Фундамент: Сложная ж/б монолитная плита с ребрами жесткости, утепленная и с засыпкой песком. Гидроизоляция — ЭПП.• Цоколь: Утепленный, облицован клинкерным кирпичом.• Стены: Трехслойные, облицовочный кирпич 120 мм, утеплитель 100 мм, газобетонные блоки Bonolit Д-600 толщиной 250 мм.• Перекрытия: Деревянный каркас 300 мм, балки 200 мм с опиранием на ж/б несущие конструкции.• Кровля: Шатровая, деревянный каркас, покрытие металлочерепицей, с системой снегозадержания и окошком для выхода на кровлю.• Окна: Rеhаu Intеliо80 с фурнитурой Siеgеniа Тitаn.Коммуникации:• Вода-Артезианская скважина • Электричество 15 кВт• Система вентиляции (естественная и приточная)• Двухуровневая канализация и дренажная система с колодцамиОтличная транспортная доступность. Развитая инфраструктура города Раменское в доступности 10 минут транспортом. Коттедж расположен прекрасном месте в черте города Раменское. В доступности вся городская инфраструктура: детские сады и школы, супермаркеты, сетевые магазины, банки, фитнес клубы, бассейн, стадион, строительный и садовый рынки, парк, кинотеатр, городской парк и другое. Прекрасное сочетание городского комфорта и спокойствия загородной жизни.В пешей доступности лес, пруд, каскад озер (рыбалка платная и бесплатная).Дом строили для себя, с максимальным вниманием к качеству и деталям.
                            211 м2
                            2 этажа
                            Бетонные блоки
                            • Показать контакты
                            • Добавить в избранное
                            211 м2
                            2 этажа
                            Бетонные блоки
                            18 000 000 
                            85 308 /м2
                              1/33
                              Дом, Зеленые берега, 17 Показать на карте
                              Раменское
                              Код объекта: 867794.Продается кирпичный дом в городской черте в районе Гостица, ул. Зеленые берега.Зеленый уютный район города частных домов.Дом 136 кв. м. с хорошим ремонтом, имеет два жилых этажа с 3-мя спальнями и гостиной, 2 сан/узла.Продается дом с мебелью и техникой.Участок 8 соток.На участке есть бревенчатая баня, теплица, гараж, зона барбекю, зона отдыха у кострища.На участке дизайнерски проложены дорожки из натурального камня, высажены декоративные и плодовоягодные растения.Ландшафт участка прекрасен и зимой и летом!Есть газ, электричество, центральное водоснабжение, септик.Хорошие соседи, аккуратные улицы.Школа в 300м от дома, в 5 минутах ходьбы общественный транспорт и магазины.Район Гостица находится у нового современного района города Зеленая околица, ул. Крымская, со всей современной городской инфраструктурой.До ж/д станции Раменское 7 минут на маршрутке.Документы на дом и участок оформлены, в собственности 1 взрослого, полная цена в договоре.Под ипотеку подходит.Юристы нашей компании быстро и безопасно оформят сделку.Звоните, покажем!
                              136 м2
                              3 этажа
                              Кирпич
                              • Показать контакты
                              • Добавить в избранное
                              136 м2
                              3 этажа
                              Кирпич
                              18 480 000 
                              135 882 /м2
                                1/18
                                Дом, Комсомольская площадь, 2 Показать на карте
                                Центральный
                                Раменское
                                Льготная ипотека от 6%! Продается готовый теплый дом от застройщика в зеленом поселке! Заезжай и живи! Семейное гнездышко с участком! Полная готовность, прописка! КЛЮЧЕВЫЕ ПРЕИМУЩЕСТВА: Своя скважина — вода в кране есть! Свой септик! Канализация — переливной септик 2 колодца по 2 кольца. Горячая вода! Установлен бойлер на 80 литров — комфорт круглосуточно. Универсальное отопление: котел (дрова/электричество) Утепление стен 150 мм, пол/потолок — 200 мм. Просторная кухня-гостиная 30 м² + 2 спальни + терраса 22 м². Участок благоустроен: парковочное место, плитка до дома, место для сада/детской площадки. Газ по границе участка — легко подключить. ПЛАНИРОВКА: Идеально для семьи! Удобное зонирование: днем — общая зона (кухня-гостиная), вечером — приватные спальни. ЛОКАЦИЯ (все рядом!): ''Пятерочка'' — 15 мин пешком Детский сад — 20 мин Школа — 25 мин Станция ''55 км'' — 25 мин 2 детские площадки в самом поселке! Тишина, природа, свежий воздух. ФИНАНСЫ: Льготная ипотека от 6% (Сбер, ВТБ, Альфа-Банк). Работаем со всеми программами: семейная, маткапитал, военная ипотека, сертификаты. Прозрачная сделка от застройщика — без переплат и скрытых платежей. Прописка возможна! #недвижимость #дом_продажа #загородныйдом #домподключ #ипотека #льготнаяипотека #ипотекаот6% #семейнаяипотека #военнаяипотека #материнскийкапитал #сбербанк #втб #альфабанк #скважина #септик #бойлер #котел #терраса #поселок #готоваянедвижимость #продажаотзастройщика #переездиживи #Раменское
                                102 м2
                                2 этажа
                                • Показать контакты
                                • Добавить в избранное
                                102 м2
                                2 этажа
                                6 957 866 
                                68 214 /м2
                                  1/7
                                  Дом, Медовая Показать на карте
                                  Северный
                                  Раменское
                                  Продам брусовый теплый дом 62кв.2этажа +баня для круглогодичного проживания.Есть все необходимое .Установлено по периметру видеонаблюдение .Септик+своя скважина вода чистаяРазмер: 5,5х7,2 мВнутренняя площадь 1 этажа: 30,90 м2Внутренняя площадь 2 этажа: 33,30 м2Площадь застройки: 39,6 м2Высота: 5,6 мПомывочная:Отделка стен и потолка евровагонка (осина) 14х110 мм сорт А. Вентиляция.Обработка:Все материалы обработаны антисептиком, против короедов. Противопожарная обработка.
                                  62 м2
                                  2 этажа
                                  • Показать контакты
                                  • Добавить в избранное
                                  62 м2
                                  2 этажа
                                  4 999 999 
                                  80 645 /м2
                                    1/5
                                    Дом, Апрельская Показать на карте
                                    Северный
                                    Раменское
                                    Арт. 66442349 Новый двухэтажный (пенобетон, частично облицован кирпичом) дом в перспективном активно застраиваемом новом районе города Раменское Дергаево-3, ул. Апрельская.Дом без отделки, двухэтажный, фундамент - бетонная монолитная плита толщиной 43 см, сделана гидроизоляция, утеплена пеноплексом. Арматура для фундамента использовалась 12 мм, с ячейкой в 20 см в 2 яруса. Кровля - вальмовая, 4-х скатная, цвет мокрый асфальт, утеплена, сделана пароизоляция, установлены снегозадержатели.Коммуникации: вода введена в дом, канализация септик, в ближайшее время улица будет электрифицирована.Оптимальная планировка: Первый этаж - просторный холл, кухня, гостиная, санузел, котельная.Второй этаж: 3 изолированные комнаты, санузел.Участок ровный, 6 соток, не угловой, статус: ''Индивидуальное жилищное строительство''.Приобретение дома на начальном этапе застройки микрорайона - выбор разумных людей, умеющих экономить свои деньги и приобретать на них максимум возможного.Через 2-3 года стоимость подобных домов (на примере Дергаево-2), даже без учета инфляции возрастет на 30-40 %. Успейте купить достойное жилье за доступные деньги!
                                    144 м2
                                    2 этажа
                                    • Показать контакты
                                    • Добавить в избранное
                                    144 м2
                                    2 этажа
                                    6 900 000 
                                    47 917 /м2
                                      1/24
                                      Дом, Дальняя Показать на карте
                                      Раменское
                                      За дом получен Аванс.Новый дом от застройщика площадью 110 кв.м. под ключ в черте города Раменское, ул. Дальняя. Прописка.Подходит под семейную и ипотеку с господдержкой!Окна стеклопакеты, крыша металлочерепица.Дом полностью отделан и готов к проживанию.Стены первого и второго этажа оклеены обоями под покраску и окрашены. На полу ламинат, линолеум.1 этаж: прихожая, кухня-гостиная, спальня, котельная, санузел.2 этаж: 3 спальни, санузел.Коммуникации: электричество 380 В (15кВт), водоснабжение - скважина, канализация - септик. Отопление - электрокотел (разведено по всему дому).Земельный участок прямоугольной формы 5 соток.До ж/д станции ''Ипподром'' - 7 минут на авто.До школы и детского сада - 5 минут на авто.Идеальный вариант для проживания за городом всей семьей.
                                      110 м2
                                      2 этажа
                                      • Показать контакты
                                      • Добавить в избранное
                                      110 м2
                                      2 этажа
                                      8 350 000 
                                      75 909 /м2
                                        1/26
                                        Дом, Комсомольская площадь Показать на карте
                                        Центральный
                                        Раменское
                                        ПОДХОДИТ ПОД ЛЬГОТНЫЕ ИПОТЕЧНЫЕ СТАВКИ: 6% СЕМЕЙНАЯ, КУРСКИЙ СЕРТИФИКАТ, ВОЕННАЯ ИПОТЕКА И СЕРТИФИКАТ, МАТЕРИНСКИЙ КАПИТАЛ, ОПЕКА!!! За наличный расчёт скидка!!! ДОМ ЗАРЕГИСТРИРОВАН!!! Оперативный выход на сделку!!! адрес дома: Московская обл, г Раменское, тер Трошково Светлое Новый одноэтажный дом 100 м², на участке 6 соток. Дом тёплый, для круглогодичного проживания. ПОД КЛЮЧ!!! ЗАЕЗЖАЙ И ЖИВИ!!! В пешей доступности: сетевые магазины, поликлиника, школа, аптека, Ж/Д станция Гжель и станция 55 км. Хороший подъезд к дому. До города Раменское 25 минут ехать на авто. Лес, пруд на территории посёлка, река Гжелка, карьеры для купания. Современный, прочный и тёплый каркасный дом со всеми коммуникациями для постоянного комфортного проживания без вложений. На участке с забором, распашными воротами, калиткой, парковкой и выложенной плиткой дорожкой до дома. Конструктив дома: - прихожая, котельная, холл , кухня-гостиная ,3 комнаты , санузел (ванна, раковина, унитаз), выводы под стиральную машину - Фундамент ленточный с ростверком - Стены каркас с утеплением 150мм базальтовое волокно, перекрытия деревянные, потолок и пол утеплен 200мм базальтовое волокно - Кровля металлочерепица - Окна пластиковые с двухкамерными стеклопакетами. Коммуникации: - Все под ключ, заведены в дом, разведены по местам потребления. - Электричество 15 кВт, 3 фазы. - Водоснабжение - скважина с глубинным насосом и греющим кабелем для круглогодичного использования. - Отопление современный гибридный котел Теплодар с возможностью отапливать дом электричеством и твердым топливом (дрова, уголь, брикеты и прочее). - Канализация - септик переливной по 2 кольца каждый.
                                        100 м2
                                        1 этаж
                                        • Показать контакты
                                        • Добавить в избранное
                                        100 м2
                                        1 этаж
                                        6 650 900 
                                        66 509 /м2
                                          1/10
                                          Дом, Ноябрьская Показать на карте
                                          Северный
                                          Раменское
                                          Новый дом в одном уровне площадью 137 кв.м. с выполненной отделкой ''под ключ''. в черте города Раменское. ИЖС.Дом от застройщика. Подходит под семейную и льготную ипотеку.Построен из газосиликатных блоков на ленточном фундаментеу.Установлены пластиковые стеклопакеты, крыша - металлочерепица.На полу уложен ламинат, плитка.На стенах - обои под покраску. Натяжные потолки с точечными светильниками.Дом полностью отделан и готов к проживанию. Коммуникации: электричество 380В (15 кВт), водоснабжение - скважина, канализация - септик.Магистральный газ - в 2025 году. В стоимость входит забор из металлопрофиля, ворота и калитка.Отопление полностью разведено по дому.Земельный участок правильной прямоугольной формы, ровный, сухой, площадью 8,5 соток.Круглогодичный подъезд, постоянно проживающие соседи.Развитая инфраструктура г.Раменское - школа, художественная школа, детский сад, магазины, строительный рынок ''Радуга''.Предназначен как для постоянного проживания, так и для отдыха за городом всей семьей.Все документы готовы к сделке. Подходит под ипотеку, возможно использование материнского капитала.
                                          137 м2
                                          1 этаж
                                          • Показать контакты
                                          • Добавить в избранное
                                          137 м2
                                          1 этаж
                                          14 000 000 
                                          102 190 /м2
                                            1/23
                                            Дом, Ноябрьская Показать на карте
                                            Северный
                                            Раменское
                                            Новый двухуровневый дом площадью 150 кв.м. с выполненной отделкой ''под ключ''. в черте города Раменское. ИЖС.Дом от застройщика. Подходит под семейную и льготную ипотеку.Построен из газосиликатных блоков на монолитном фундаменте.Установлены пластиковые стеклопакеты, крыша - металлочерепица.На полу уложен ламинат, плитка.На стенах - обои под покраску. Натяжные потолки с точечными светильниками.Дом полностью отделан и готов к проживанию. 1 этаж: прихожая, кухня-гостиная, спальня, котельная, санузел, веранда.2 этаж: 3 спальни, санузел.Коммуникации: электричество 380В (15 кВт), водоснабжение - скважина, канализация - септик.Магистральный газ - в 2025 году. В стоимость входит забор из металлопрофиля, ворота и калитка.Отопление полностью разведено по дому.Земельный участок правильной прямоугольной формы, ровный, сухой, площадью 6 соток.Круглогодичный подъезд, постоянно проживающие соседи.Развитая инфраструктура г.Раменское - школа, художественная школа, детский сад, магазины, строительный рынок ''Радуга''.Предназначен как для постоянного проживания, так и для отдыха за городом всей семьей.Все документы готовы к сделке. Подходит под ипотеку, возможно использование материнского капитала.
                                            150 м2
                                            2 этажа
                                            • Показать контакты
                                            • Добавить в избранное
                                            150 м2
                                            2 этажа
                                            14 300 000 
                                            95 333 /м2
                                              1/16
                                              Дом, Балтийская, 23 Показать на карте
                                              Северный
                                              Раменское
                                              Арт. 91946391 ПPOДАETCЯ ДOM ОБЩЕЙ ПЛОЩАДЬЮ 140 KВ.M. В ЧЕРTE ГОPOДA PAMEHСКОE, HA УЧАCTКЕ( ИЖС) 6 СОТОК!Дoм бoльшoй, пpocторный, светлый, общей площaдью 140 кв.м. В дoме прихожая, 3 изолирoванных спaльни, куxня- гостинная c выхoдoм на пpостopную открытую терpaсу c видом во двор, 2 изолированных санузла, бойлерная, гардеробная.Фундамент плитно-ленточныйСтены - газосиликат 300 утепление 50 мм. Фасад облицовочный кирпич Braer. Кровля металлочерепица Grant Line. Ливневка Docke. Участок огорожен забором со всех сторон из профнастила с калиткой и воротами.КОММУНИКАЦИИ:Газ по границе участка.Вода : скважина.Канализация : септик ( станция автономной очистки ) с дренажным колодцем. Электричество 15 кВт Электрический столб у забора, установлен ИПУ.Отопление: водяные полы по всему дому + панельные радиаторы. Котел электрический , есть возможность установки газового котла по гос. Программе. Плановое подключение 2025 год . Участок сухой, ровный, по границе дренажная канава.Все социальные объекты под рукой: магазины, рынок,, поликлиника, школы. Остановка общественного транспорта в пешей доступности.До ЖД станции '' Раменское'' и ''47 км.'' 15-20 минут.Курсирует наземное метро МЦД-3.Транспортная доступность на автомобиле по Новорязанскому, Егорьевскому шоссе и выезд на ЦКАД.БЫСТРЫЙ ВЫХОД НА СДЕЛКУ!1 СОВЕРШЕННОЛЕТНИЙ СОБСТВЕННИК.БЕЗ ОБРЕМЕНЕНИЙ.Подходит под Семейную ИПОТЕКУ 6%Уважаемые Покупатели, если Вам нужно одобрить ипотеку, мы можемэто сделать из нашего офиса.Мы являемся партнерами всех ведущих банков расположенных на территории РФ:Сбербанк(ПАО), ВТБ (ПАО), Россельхозбанк , Газпромбанк, Альфа-Банк,МКБ, БЖФ, Совкомбанк, Ипотека 24 , Райффайзенбанк, Промсвязьбанк,Открытие, Юникредит, Росбанк Дом , Абсолют, Ипотека 24, Юникредит,Уралсиб, Металлинвестбанк, Дом РФ, Транскапитал, Зенит.Оперативно покажем квартиру в любое удобное для Вас время. Подберем самые выгодные условия по ипотеке и поможем с ее одобрением!Гарантируем полное сопровождение и безопасность вашей сделки! ЗВОНИТЕ!!!
                                              140 м2
                                              1 этаж
                                              Кирпич
                                              • Показать контакты
                                              • Добавить в избранное
                                              140 м2
                                              1 этаж
                                              Кирпич
                                              13 990 000 
                                              99 929 /м2
                                                1/13
                                                Дом, Апрельская Показать на карте
                                                Северный
                                                Раменское
                                                Продается новый современный двухуровневый коттедж общей площадью 165 кв.м. в черте города Раменское. ИЖС.Дом от Застройщика, подходит под семейную ипотеку под 6%.Монолитный фундамент. Стены из газосиликатных блоков марки D400, снаружи облицован кирпичом.Монолитные перекрытия, монолитная лестница, крыша металлочерепица.Удобная продуманная планировка с жилой комнатой на первом этаже.В настоящее время ведутся строительные работы, что дает возможность учесть ваши пожелания.1 этаж: прихожая, кухня-гостиная, спальня, котельная, санузел.2 этаж: 3 спальни, кабинет, санузел.Электричество 380В (15 кВт), водоснабжение - колодец, канализация - септик.Земельный участок правильной прямоугольной формы, ровный, сухой, площадью 6 соток.Круглогодичный подъезд, постоянно проживающие солидные соседи.Развитая инфраструктура г.Раменское - школа, художественная школа, детский сад, магазины, строительный рынок ''Радуга''.Отличная транспортная доступность.Хороший вариант как для постоянного проживания, так и для отдыха за городом всей семьей.
                                                165 м2
                                                2 этажа
                                                Кирпич
                                                • Показать контакты
                                                • Добавить в избранное
                                                165 м2
                                                2 этажа
                                                Кирпич
                                                15 000 000 
                                                90 909 /м2
                                                  1/23
                                                  Коттедж, Раменское Показать на карте
                                                  Северный
                                                  Раменское
                                                  Арт. 73283880 Большой дом 190 кв.м. С гаражом на 2 авто и террасойПОДХОДИТ ПОД ЛЬГОТНУЮ И СЕМЕЙНУЮ ИПОТЕКУ, ПРОДАЕТСЯ ОТ ЗАСТРОЙЩИКА!Продается большой коттедж с теплым гаражом и террасой общей площадью 190 кв.м на участке 6 соток. Реальная площадь дома (теплого контура) 180кв.м. + терраса 10кв.м.Технические характеристики дома: Фундамент железобетонная монолитная армированная плита 300мм, с дополнительным армированием под несущими стенами на подготовленной подушке 70см! Вокруг плиты выполнен дренаж! Стены газосиликатные блоки 25см, с утеплением 10см ''ппу'', межкомнатные перегородки 10см газосиликатные блоки. Перекрытие между 1 и 2 этажами - железобетонная монолитная армированная плита 180мм! Монолитная лестница на второй этаж. Перекрытия второго этажа дерево, с трехслойным утеплением из плитной качественной каменной ваты плотностью 35кг. Окна премиальной серии с дорогой и качественной фурнитурой, толщина профиля 80мм, толщина стеклопакета 51мм. Кровля Металлочерепица Grand Line с гидроизоляцией и контробрешоткой. Фасад здания из кирпича 1 этаж баварская кладка, второй этаж светло песочного цвета + вентилируемый зазор. Участок огорожен забором с откатными воротами. В доме 4 санузла. 1 ЭТАЖ Просторная гостиная + большая кухня, гараж на 2 авто, бойлерная, гардеробная, прихожая, отдельная туалет с раковиной, SPA зона с душевой, сауной и раковиной, терраса, два выхода на участок и террасу. 2 ЭТАЖ 3 спальни + гардеробные в них, отдельный туалет и большая ванная комната. Коммуникации: магистральный газ - по границе, электричество, водоснабжение колодец 8 колец, плюс колодец 3 кольца для полива, канализация - септик. Земельный участок земли населенных пунктов, ИЖС. До ближайшей автобусной остановки 300 м. В пешей доступности есть продуктовые магазины, аптеки и остальная инфраструктура города Раменское. До школы и детского сада 5 мин.В доме ведутся работы по отделке. Также готовы закончить строительные работы по отделке дома под ключ.
                                                  190 м2
                                                  2 этажа
                                                  • Показать контакты
                                                  • Добавить в избранное
                                                  190 м2
                                                  2 этажа
                                                  12 700 000 
                                                  66 842 /м2
                                                    • В начало
                                                    • 10
                                                    • 11
                                                    • 12
                                                    • 13
                                                    • 14
                                                    • Следующая
                                                    Распечатать
                                                    Продажа домов, коттеджей в Раменском
                                                    • по районам
                                                    • Гостица
                                                    • Залинейный
                                                    • Западный
                                                    • МЖК
                                                    • Северный
                                                    • Центральный

                                                    Вместе с этим также ищут:

                                                    Продажа квартир в Раменском Продажа однокомнатных квартир в Раменском Продажа комнат в Раменском Продажа гаражей в Раменском Продажа вторички - квартиры в Раменском Квартиры в новостройках в Раменском

                                                    🏠 Как купить дом, коттедж в Раменском на N1?

                                                    • ✔ В поисках объявления о продаже или покупке домов, коттеджей в Раменском?
                                                    • ✔ На N1 размещены 1,19 тыс домов, коттеджей
                                                    • ✔ Чтобы купить или продать недвижимость, воспользуйтесь формой поиска, фильтрами или быстрыми ссылками.

                                                    💸 Сколько стоит дом, коттедж в Раменском?

                                                    • 🟢 Средняя цена продажи домов, коттеджей - 12,37 млн ₽
                                                    • 🟢 Минимальная стоимость за 1 м2: 91,70 тыс ₽

                                                    📚 Какая площадь домов, коттеджей?

                                                    • Наибольшая площадь: 1,25 тыс м²
                                                    • Минимальная площадь: 30 м²