Если цена в объявлении изменится, мы сразу сообщим вам об этом на электронную почту.
Нажимая «Подписаться», вы соглашаетесь с правилами.
продам дом, Декабрьская, 3512 990 000 ₽
27 фев
Дата публикации объявления
Обн. 17 мая
Дата обновления объявления
1
Количество просмотров (+ просмотры за сегодня)
104 758 ₽/м²
Чистая продажа
Термин "Чистая продажа" означает, что в квартире никто не прописан или
есть куда выписаться и вывезти вещи. Это лучший вариант для покупателя.
Вероятность срыва сделки минимальна.
Этажей1
Площадь участка6 соток
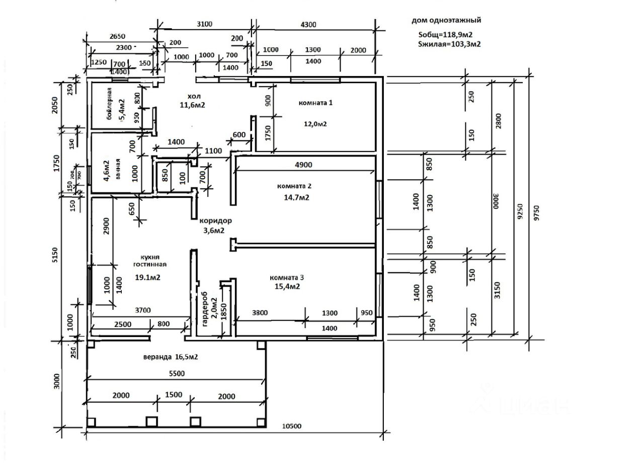
Общая площадь124 м2
Материал домадерево
ЭлектричествоЕсть
Газоснабжениенет
Одноэтажный дом от застройщика аккредитация в Сбербанке, Газпромбанке, ВТБ, Сельхозбанке. Строим дом из клееного бруса ПОД КЛЮЧ, общей площадью 107,68 кв.м (теплая площадь 87,1 кв.м) с площадью застройки 123,08 кв.м (с верандой).
Адрес указан относительно самого ближайшего объекта, так как на картах еще не обозначен правильный адрес дома. Просьба уточнят по телефону. Дом расположен на улице Декабрьская, уч 38
Конструктивные особенности: Монолитный железобетонный плитный фундамент. Наружные и внутренние стены клееный профилированный брус сечением 200х170 мм. Крыша многоскатная с покрытием из металлочерепицы по деревянным несущим конструкциям изготовленных из древесины камерной сушки, водостоки, снегодержатели.
Одноэтажный дом от застройщика аккредитация в Сбербанке, Газпромбанке, ВТБ, Сельхозбанке. Строим дом из клееного бруса ПОД КЛЮЧ, общей площадью 107,68 кв.м (теплая площадь 87,1 кв.м) с площадью застройки 123,08 кв.м (с верандой).
Адрес указан относительно самого ближайшего объекта, так как на картах еще не обозначен правильный адрес дома. Просьба уточнят по телефону. Дом расположен на улице Декабрьская, уч 38
Конструктивные особенности: Монолитный железобетонный плитный фундамент. Наружные и внутренние стены клееный профилированный брус сечением 200х170 мм. Крыша многоскатная с покрытием из металлочерепицы по деревянным несущим конструкциям изготовленных из древесины камерной сушки, водостоки, снегодержатели. Отопление дома осуществляется от водяного тёплого пола. Система заземления и локальная канализация с септиком. Наружная отделка бревенчатых стен выполняется лесирующем составом с предварительной грунтовкой. Производственный процесс осуществляется на современном европейском оборудовании с соблюдением строгих стандартов качества. Вода скважина. Электричество 15 кВт, три фазы. Окна пластиковые двухкамерные. Крыша металл-черепица. Дом сдается в эксплуатацию с полной внутренней отделкой: светильники, межкомнатные двери, сантехника в сан/узле. Адрес указан относительно самого ближайшего объекта, так как на картах еще не обозначен правильный адрес дома. Просьба уточнят по телефону. Дом расположен на улице Декабрьская уч. 38. Подходит семейная, военная, простая ипотека, строительство по подряду с семейной ипотекой! Идет активная газификация территории. Инфраструктура: рядом остановка общественного транспорта в центр города Раменское, 15-20 минут на общественном транспорте до станции Ипподром (МСД 4- метро) 4,5 км. Также рядом школа 23, поликлиника 1, центр Гимнастики, супермаркеты, шиномонтажная и др. Земельный участок 6 соток, категория земли - населенных пунктов, разрешенное использование - для ИЖС.