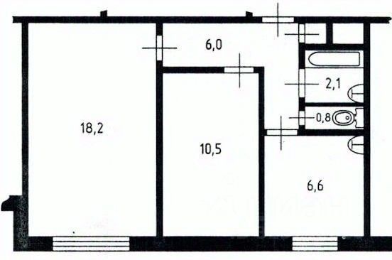
Арт. 123464259 Вашему вниманию продается двухкомнатная квартира на 7 этаже по адресу: г. Раменское, ул. Красноармейская, д. 19
Квартира в собственности с 2002 года, 1 собственник, никто не прописан.
Состояние - под ремонт!!!
Квартира в минуте ходьбы от остановки общественного транспорта. Рядом школы, детские сады, ТЦ, магазины, Городской парк и т.д. Все рядом! Все в пешей доступности.
Квартира подходит под любые виды сертификатов. Свободная продажа, быстрый выход на сделку. Оперативный показ.
Звоните, я в любое время отвечу на Ваши вопросы.
















