Если цена в объявлении изменится, мы сразу сообщим вам об этом на электронную почту.
Нажимая «Подписаться», вы соглашаетесь с правилами.
продам дом, Фестивальная14 500 000 ₽
23 авг
Дата публикации объявления
Обн. 22 окт
Дата обновления объявления
96 667 ₽/м²
Чистая продажа
Термин "Чистая продажа" означает, что в квартире никто не прописан или
есть куда выписаться и вывезти вещи. Это лучший вариант для покупателя.
Вероятность срыва сделки минимальна.
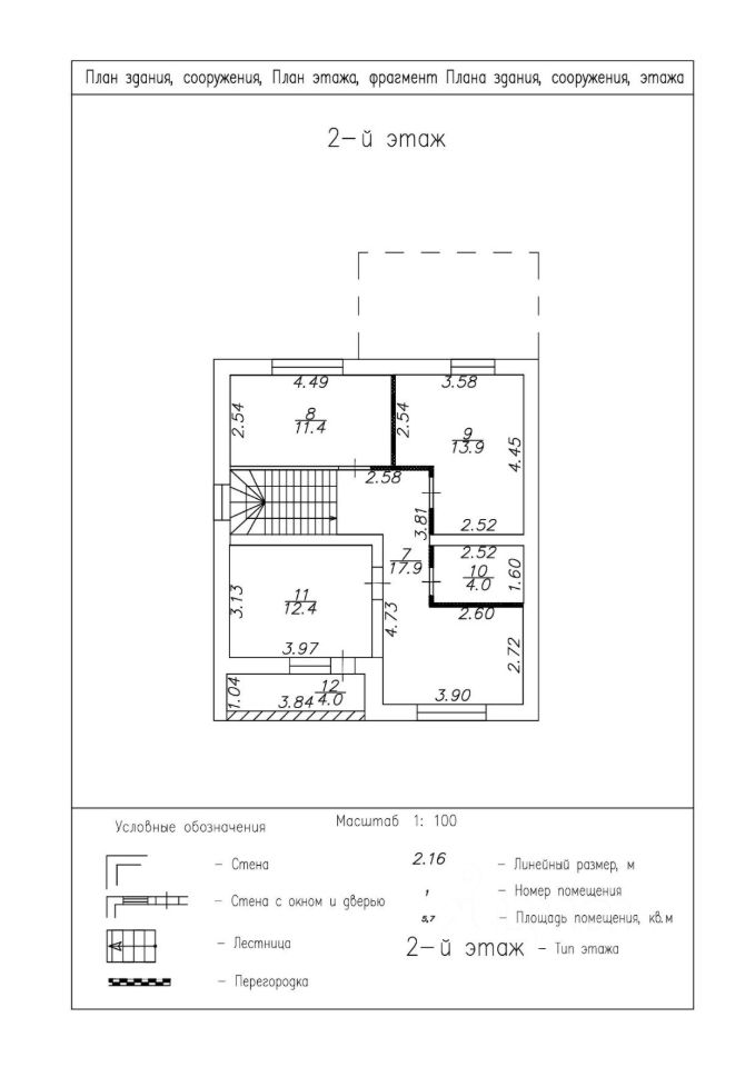
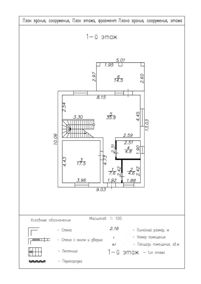
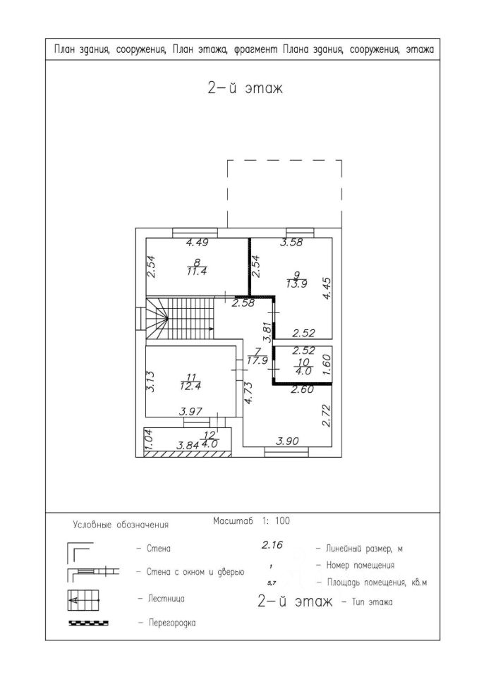
Этажей2
Площадь участка6 соток
Общая площадь150 м2
Материал домакирпич
ЭлектричествоЕсть
Газоснабжениенет
Продается дом в г.Раменское Московская область, ул. Фестивальная д.70. Дом общ. площадью 148,5 кв.м., 2- этажный . Дом подходит под льготную ипотеку. Первый этаж : бойлерная , сан узел, спальня, кухня гостиная, из кухни выход на открытую террасу . Первый этаж теплые полы и батареи обогревается электро- котлом. Фундамент ленточный с заливкой плиты одновременно, под плитой уложен пеноплекс 5см, над бетонной плитой также уложен пеноплекс 5см, после чего уложены теплые полы и сделана стяжка. На втором этаже лоджия. На крыше установлены снего- задержатели и водосточная ситема . Стены пеноблок Бонолит 300 мм в ширину , вент зазор и облицовочный кирпич. Окна профиль 72мм двух пакетный. Вода -колодец. Канализация -станция био очистки типа ,,Топаз,,.
Продается дом в г.Раменское Московская область, ул. Фестивальная д.70. Дом общ. площадью 148,5 кв.м., 2- этажный . Дом подходит под льготную ипотеку. Первый этаж : бойлерная , сан узел, спальня, кухня гостиная, из кухни выход на открытую террасу . Первый этаж теплые полы и батареи обогревается электро- котлом. Фундамент ленточный с заливкой плиты одновременно, под плитой уложен пеноплекс 5см, над бетонной плитой также уложен пеноплекс 5см, после чего уложены теплые полы и сделана стяжка. На втором этаже лоджия. На крыше установлены снего- задержатели и водосточная ситема . Стены пеноблок Бонолит 300 мм в ширину , вент зазор и облицовочный кирпич. Окна профиль 72мм двух пакетный. Вода -колодец. Канализация -станция био очистки типа ,,Топаз,,. Земельный участок 6 соток, ровный сухой, находится на возвышенности по отношению к Рыбхозному шоссе, воды весной на участке нет . До остановки общественного транспорта 500 м, до города две остановки где школа, дет. сад, поликлиника. Магазин открывают в шаговой доступности рядом с остановкой . За наличные цена ниже. Сделано понижение по электро -тарифу. Кадастровый номер зем. участка 50:23:0020275:3906. Письменная гарантия на дом на 3 года .