Если цена в объявлении изменится, мы сразу сообщим вам об этом на электронную почту.
Нажимая «Подписаться», вы соглашаетесь с правилами.
продам дом, Новой Жизни, 1415 499 999 ₽
4 авг
Дата публикации объявления
Обн. 18 фев
Дата обновления объявления
5
Количество просмотров (+ просмотры за сегодня)
70 455 ₽/м²
Чистая продажа
Термин "Чистая продажа" означает, что в квартире никто не прописан или
есть куда выписаться и вывезти вещи. Это лучший вариант для покупателя.
Вероятность срыва сделки минимальна.
Этажей2
Площадь участка6 соток
Общая площадь220 м2
ЭлектричествоЕсть
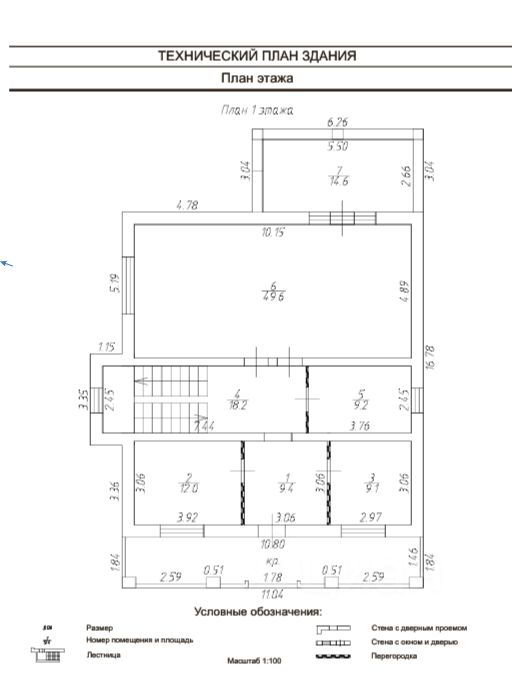
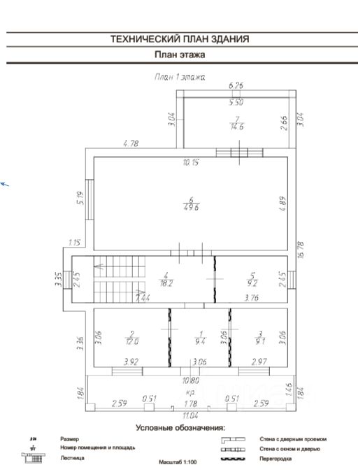
ОБЪЕКТ 47824 Новый дом 228 м² на участке 6 соток | Ипотека от 6% | IT-льготы |Цена указана- Без отделки в теплом контуре Расположение: Посёлок Дергаево-2 (38 км от МКАД, Новорязанское /Егорьевское шоссе). 10 мин на до центра Раменского, 15 мин до ж/д станции (МЦД-3). Рядом — хвойный лес, инфраструктура (школы, парки, Ашан, кафе). Газификация, электричество 15 кВт. Скважина. О доме: 2 этажа | 228 м² | Участок 6 соток 1-этаж ( 122 м) Кухня столовая -49 м, (С выходом на террасу ) Комната -18,2 м, Прихожая -9,4 м Коридор 18 м, Санузел -9,2 м, Терраса 14.6м, Котельная 9,1 м ( возможно установить там доп раковину и туалет ).
2-этаж (105,9 м.) 1-Спальня - 28 м (мастер спальня с доп.
ОБЪЕКТ 47824 Новый дом 228 м² на участке 6 соток | Ипотека от 6% | IT-льготы |Цена указана- Без отделки в теплом контуре Расположение: Посёлок Дергаево-2 (38 км от МКАД, Новорязанское /Егорьевское шоссе). 10 мин на до центра Раменского, 15 мин до ж/д станции (МЦД-3). Рядом — хвойный лес, инфраструктура (школы, парки, Ашан, кафе). Газификация, электричество 15 кВт. Скважина. О доме: 2 этажа | 228 м² | Участок 6 соток 1-этаж ( 122 м) Кухня столовая -49 м, (С выходом на террасу ) Комната -18,2 м, Прихожая -9,4 м Коридор 18 м, Санузел -9,2 м, Терраса 14.6м, Котельная 9,1 м ( возможно установить там доп раковину и туалет ).
2-этаж (105,9 м.) 1-Спальня - 28 м (мастер спальня с доп. Ванной комнатой и гардеробной), 2-Спальня - 26 м , 3-Спальня- 22 м, Коридор - 9,4 м , Санузел- 9 м.+9,4 м. кв Материалы: газоблок + кирпичная облицовка, монолитные перекрытия и лестница. Высота потолков: 3 м. Кровля: металлочерепица 0,5 с утеплением в три слоя по 15. Окна: ПВХ Rexar оригинал. Участок: ровный, временный забор (планируются кирпичные столбы), зона барбекю. Забор с откатными воротами. Отмостка вокруг дома сделана.
Условия покупки: Семейная ипотека — от 6% (для семей с детьми). IT-ипотека — спецставки для IT-специалистов. Сделка с поддержкой Гильдии риэлторов МО (все сделки застрахованы до 30 000 000 рублей). За наличный расчет ( цена указана) Варианты отделки: Черновая (под ваш дизайн). White Box или ''под ключ'' (уточняйте стоимость). Транспорт: До МКАД — 36 км (м. Котельники). До Москвы (метро Комсомольская) — 45 мин на ''Спутнике''. Остановка в 3 мин ходьбы. Рядом открылась новая школа. Идеально для ценителей тишины и природы без удалённости от города. Звоните — покажем дом сегодня! Безопасность сделки обеспечена стандартами работы Гильдии Риэлторов Московской Области Не упустите шанс переехать в новый дом в Раменском! Желательно звонить , отвечу на все вопросы.