Если цена в объявлении изменится, мы сразу сообщим вам об этом на электронную почту.
Нажимая «Подписаться», вы соглашаетесь с правилами.
продам 3-к, Молодежная, 1810 000 000 ₽
27 июля 2025
Дата публикации объявления
Обн. 28 окт
Дата обновления объявления
39
Количество просмотров (+ просмотры за сегодня)
143 472 ₽/м²
Чистая продажа
Термин "Чистая продажа" означает, что в квартире никто не прописан или
есть куда выписаться и вывезти вещи. Это лучший вариант для покупателя.
Вероятность срыва сделки минимальна.
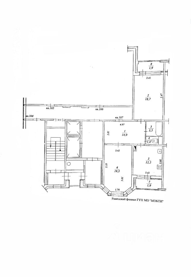
Продается квартира-распашонка в теплом кирпичном доме ЖК Десятка. В квартире большая прихожая как отдельная комната (14,0), две изолированные большие комнаты (18,7 и 19,3), одна из которых с выходом на лоджию (3,7), кухня (12,2) с выходом на лоджию (3,7), раздельный санузел. Воду не отключают! Квартира не жаркая летом и теплая зимой. Окна выходят на северо-восток и юго-запад. Кухня со встроенной техникой, большой зеркальный шкаф в прихожей, мебель в комнатах. На лоджии выведены розетки и освещение.
Во дворе детская и спортивная площадки, большое количество парковочных мест. В шаговой доступности детский сад, школа, магазины (Магнит, Вкуссвилл, Ашан и пр.), кафе и рестораны.
1 взрослый собственник по ДКП более 5 лет. Полная стоимость в договоре. Юридически свободна.
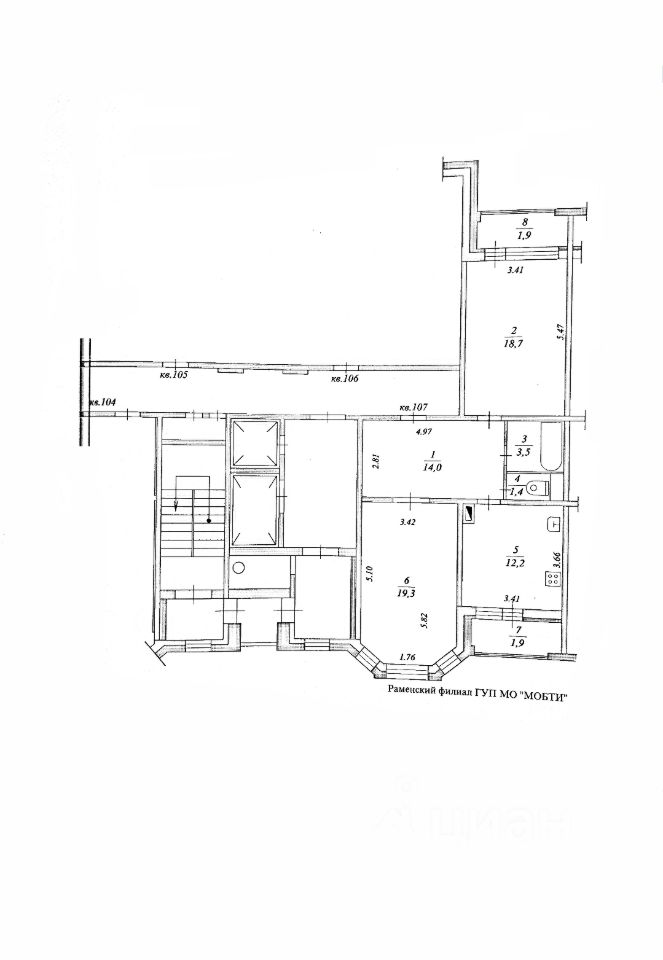
Продается квартира-распашонка в теплом кирпичном доме ЖК Десятка. В квартире большая прихожая как отдельная комната (14,0), две изолированные большие комнаты (18,7 и 19,3), одна из которых с выходом на лоджию (3,7), кухня (12,2) с выходом на лоджию (3,7), раздельный санузел. Воду не отключают! Квартира не жаркая летом и теплая зимой. Окна выходят на северо-восток и юго-запад. Кухня со встроенной техникой, большой зеркальный шкаф в прихожей, мебель в комнатах. На лоджии выведены розетки и освещение.
Во дворе детская и спортивная площадки, большое количество парковочных мест. В шаговой доступности детский сад, школа, магазины (Магнит, Вкуссвилл, Ашан и пр.), кафе и рестораны.
1 взрослый собственник по ДКП более 5 лет. Полная стоимость в договоре. Юридически свободна. Свободная продажа. Остались вопросы? Звоните!