Если цена в объявлении изменится, мы сразу сообщим вам об этом на электронную почту.
Нажимая «Подписаться», вы соглашаетесь с правилами.
продам дом, Тургенева34 000 000 ₽
8 июля 2025
Дата публикации объявления
Обн. 21 июля 2025
Дата обновления объявления
3
Количество просмотров (+ просмотры за сегодня)
226 667 ₽/м²
Чистая продажа
Термин "Чистая продажа" означает, что в квартире никто не прописан или
есть куда выписаться и вывезти вещи. Это лучший вариант для покупателя.
Вероятность срыва сделки минимальна.
Этажей1
Площадь участка10 соток
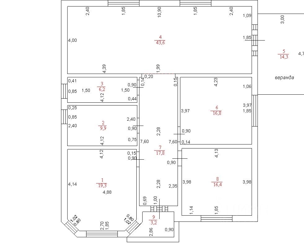
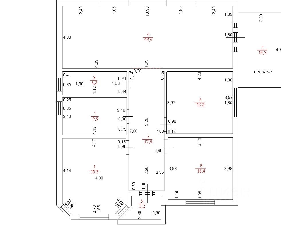
Общая площадь150 м2
ЭлектричествоЕсть
Газоснабжениецентральное
Продается новый жилой дом, построен в классическом стиле, в знаменитом дачном месте, черта города Раменское, сторона города Жуковский, рядом посёлок Кратово, возведен в мае 2025 года, с чистовой отделкой (сейчас ведутся окончательные работы), на первом этаже везде уложен теплый пол, плитка, ламинат, потолки покрашены, стены-обои с покраской. Площадь дома 150 кв.м, одноэтажный, терраса, холл, кухня-столовая, гостиная, 3 спальни, одна с эркером, 2 санузла, есть мансардный этаж, свободного назначения, не входит в общую площадь, около 45 кв.м. Фундамент- монолитная железобетонная плита с гидроизоляцией и утеплением 350мм, стены - газоблок 400мм, перегородки 200 мм, высота 1-го этажа 3,05м, кровля 3d мягкая, технониколь, шинглс кантри индиана.
Продается новый жилой дом, построен в классическом стиле, в знаменитом дачном месте, черта города Раменское, сторона города Жуковский, рядом посёлок Кратово, возведен в мае 2025 года, с чистовой отделкой (сейчас ведутся окончательные работы), на первом этаже везде уложен теплый пол, плитка, ламинат, потолки покрашены, стены-обои с покраской. Площадь дома 150 кв.м, одноэтажный, терраса, холл, кухня-столовая, гостиная, 3 спальни, одна с эркером, 2 санузла, есть мансардный этаж, свободного назначения, не входит в общую площадь, около 45 кв.м. Фундамент- монолитная железобетонная плита с гидроизоляцией и утеплением 350мм, стены - газоблок 400мм, перегородки 200 мм, высота 1-го этажа 3,05м, кровля 3d мягкая, технониколь, шинглс кантри индиана. Фасад отделка клинкерной плиткой Leonardo Stone с утеплением 6мм. Свет заведен в дом и разведен до точек потребления, газ заведен в дом, отопление газовое, вода центральная, заведена в дом и разведена до точек потребления, канализация септик, заведена в дом и разведена по дому. Рядом вся инфраструктура, школа, детский сад, магазины. Автобусная остановка 150 м, до станции Есенинская МЦД-3 10 минут пешком. Дом расположен на живописной, зеленой, тихой, улице, прекрасное окружение, хорошие соседи, на участке и вокруг вековые сосны. Асфальтированный подъезд. Шикарная альтернатива 4-х комнатной квартире- вы получаете просторный дом на собственном земельном участке, где можно расположить беседку, место для стоянки автомобиля, разбить сад и огород. Гарантия на строительство дома 3 года, все материалы высокого качества, строительство произведено профессиональной фирмой. Домов такого качества постройки вы не найдете в этом районе. Документы готовы к сделке, один взрослый собственник, подходит под ипотеку (оценочная стоимость около 35 млн. руб.) Звоните! Оперативный показ, быстрый выход на сделку, юридическое сопровождение по договору с гарантией.