Если цена в объявлении изменится, мы сразу сообщим вам об этом на электронную почту.
Нажимая «Подписаться», вы соглашаетесь с правилами.
продам дом, Зимняя14 750 000 ₽
9 фев 2025
Дата публикации объявления
Обн. 10 мар
Дата обновления объявления
3
Количество просмотров (+ просмотры за сегодня)
88 855 ₽/м²
Чистая продажа
Термин "Чистая продажа" означает, что в квартире никто не прописан или
есть куда выписаться и вывезти вещи. Это лучший вариант для покупателя.
Вероятность срыва сделки минимальна.
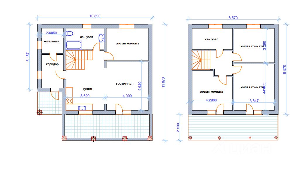
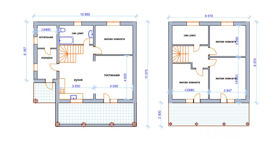
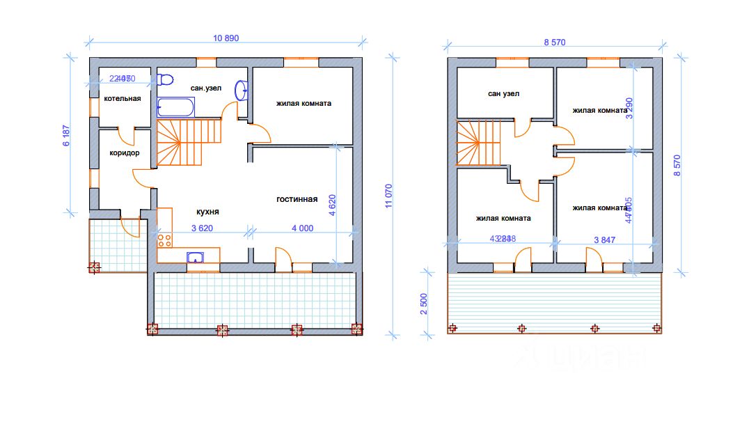
Этажей2
Площадь участка6,5 соток
Общая площадь166 м2
ЭлектричествоЕсть
Газоснабжениецентральное
От Застройщика! Дом с участком ''ПОД КЛЮЧ'' для круглогодичного проживания в черте города Раменское, улица Зимняя. Газ по госпрограмме. Асфальтированная дорога, магазины, школа, сад, вся инфраструктура города. Дом стоит на монолитном армированном фундаменте, построен из газобетонного блока, утеплен пеноплексом и обложен кирпичом, проложен пароизоляционный материал, кровля - металлочерепица. Перекрытия - ж/б монолитная плита. Участок естественный, огорожен забором из профлиста с калиткой и воротами. Первый этаж: прихожая, коридор, санузел, кухня-гостиная, комната, выход на террасу. Теплый контур ''водяного'' пола. Второй этаж: три большие спальни, санузел, гардеродная. Стены в комнатах покрашены, пол - плитка 1й этаж, ламинат 2й этаж. Электричество 15 кВт. Водоснабжение из скважины.
От Застройщика! Дом с участком ''ПОД КЛЮЧ'' для круглогодичного проживания в черте города Раменское, улица Зимняя. Газ по госпрограмме. Асфальтированная дорога, магазины, школа, сад, вся инфраструктура города. Дом стоит на монолитном армированном фундаменте, построен из газобетонного блока, утеплен пеноплексом и обложен кирпичом, проложен пароизоляционный материал, кровля - металлочерепица. Перекрытия - ж/б монолитная плита. Участок естественный, огорожен забором из профлиста с калиткой и воротами. Первый этаж: прихожая, коридор, санузел, кухня-гостиная, комната, выход на террасу. Теплый контур ''водяного'' пола. Второй этаж: три большие спальни, санузел, гардеродная. Стены в комнатах покрашены, пол - плитка 1й этаж, ламинат 2й этаж. Электричество 15 кВт. Водоснабжение из скважины. Канализация переливной септик. Отопление от электрокотла с установленными биметаллическими радиаторами и разводкой по дому. Строю дома ''под ключ'' на своих и на Ваших участках! Любая ипотека (на готовые дома и под строительство)! Помощь в одобрении! Возможность приобретения с минимальным первоначальным взносом!